Používame cookies

Súbory cookie a ďalšie technológie sledovania používame na zlepšenie vášho zážitku z prehliadania našich webových stránok, na to, aby sme vám zobrazovali prispôsobený obsah a cielené reklamy, na analýzu návštevnosti našich webových stránok a na pochopenie toho, odkiaľ naši návštevníci prichádzajú. Viac info

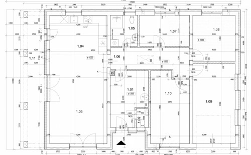
HANISKA - HRUBÁ STAVBA 4 IZBOVÉHO DOMU V NOVEJ LOKALITE.
  Ľutujeme táto ponuka už nieje aktuálna.

Ponúkame Vám 4 izbový rodinný dom s garážou a priestrannou terasou - novostavba - v štádiu uzavretej hrubej stavby vrátane vonkajších okien a dverí - v novej lokalite obce Haniska pri Košiciach. Pôdorys domu 17,2m x 10,3m vrátane terasy. Materiál: ytong. Strecha: rovná. Dispozícia: denná časť - chodba, WC, kúpeľňa, obývacia izba s kuchyňou a nočná časť  - 2 x izba a spálňa. Súčasťou domu je vnútorná garáž s priamym vstupom do domu o výmere 19m2, terasa s výmerou 28m2. Pozemok má celkovú rozlohu cca 608m2. Elektrická prípojka na pozemku, voda nerealizovaná  - plánovaná studňa, prístupová komunikácia sa už buduje na náklady obce, odpad plánovaná žumpa. Cena domu 193 000 € je vrátane komplexných služieb a  všetkých poplatkov spojených s prevodom nehnuteľnosti. Právny servis zabezpečujeme advokátskou kanceláriou. Financovanie a poistenie Vám zabezpečí tím našich odborných špecialistov.

 

Zdieľať na Facebooku

Typ ponuky
Predaj
Typ
Rodinný dom
Lokalita
ulica Zamajer
Haniska
Celková výmera
m2

Vlastnosti nehnuteľnosti

Status:
aktívne
Vlastníctvo:
osobné
Stav:
novostavba
Úžitková plocha:
100 m2
Plocha pozemku:
608 m2
Počet podlaží:
1
Počet izieb:
4
Balkón:
nie
vlastnosti nehnuteľnosti

Podobné nehnuteľnosti, ktoré by Vás mohli zaujímať